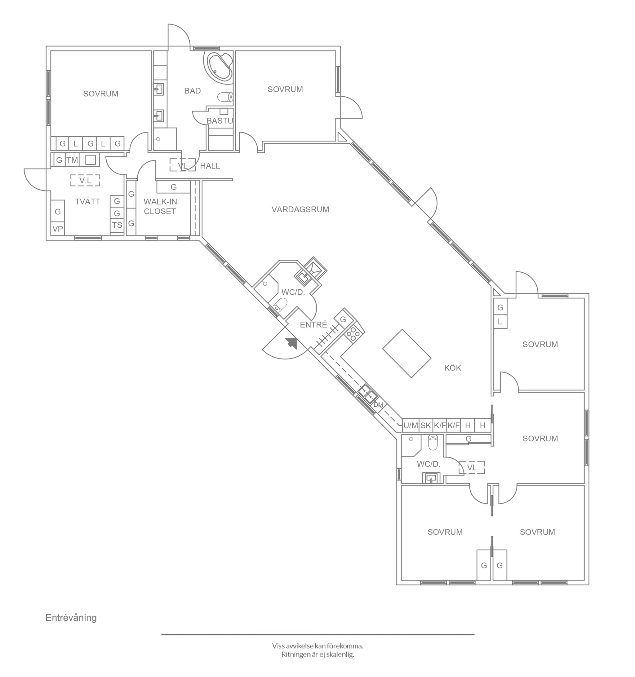
RUMSBESKRIVNING
ENTRÉ MED BADRUM
Ljus och välkomnande entré via pardörrar med goda avhängningsmöjligheter i skjutdörrsgarderob. Helkaklat badrum utrustat med dusch, toalett och tvättställ.
VARDAGSRUM OCH KÖK
Ljust och öppet vardagsrum med stora fönsterpartier och utgång till altan med komposittrall och två stora markiser. Contura-kamin skapar både värme och trivsel. Infällda takspotlights i vardagsrum och kök samt integrerade Bose-högtalare.
Modernt kök från HTH med köksö, svarta granitbänkskivor och vitvaror från Siemens. Utrustat med spis (2015), mikro (2015), kyl och frys (2015) samt spisfläkt och diskmaskin (2024). Vitmattlackerat parkettgolv från Kährs samt stora mörkgrå klinkerplattor i köksdelen.
SOVRUMSAVDELNING 1 MED TRE SOVRUM OCH ALLRUM
Den perfekta barnavdelningen! Tre stora sovrum om ca 15 kvm vardera, samtliga med garderober. Allrum i mitten av avdelningen. Vitmattlackerat parkettgolv från Kährs.
BADRUM
Helkaklat badrum med dusch, toalett och tvättställ.
SOVRUMSAVDELNING 2 MED TVÅ SOVRUM
Vidare i andra delen av huset ligger ett stort master bedroom med terrassutgång och ytterligare ett stort rum som idag används som gym. Vitmattlackerat parkettgolv från Kährs.
BADRUM MED BASTU
Helkaklat badrum med både dusch och badkar, tvättställ och toalett. Bastu i direkt anslutning samt utgång till terrass.
WALK-IN-CLOSET
Stort klädvårdsrum med platsbyggd inredning. Skön heltäckningsmatta ligger på golvet.
TVÄTTSTUGA MED SEPARAT INGÅNG.
Rejäl tvättstuga med tvättmaskin (Miele 2020), torktumlare (Miele 2023) och torkskåp. Bra med förvaring. Klinkergolv.
DUBBELGARAGE
Rymligt dubbelgarage med plats för två bilar samt goda förvaringsmöjligheter. Luft/luftvärmepump (Panasonic 2025).
GÄSTLÄGENHET
I anslutning till dubbelgaraget finns en intillliggande gästlägenhet med allrum, helkaklat badrum med dusch samt kitchenette med kyl, mikrovågsugn och vask. Klinkergolv med komfortvärme. Luft/luftvärmepump med AC (Qlima 2025).
GÄSTHUS
Friliggande gästhus med kontor, sovrum och helkaklat badrum utrustat med tvättmaskin. Från kontoret nås en avskild del av trädgården via en egen utgång. Nya parkettgolv i rummen, klinkergolv i entrén. Luft/luftvärmepump med AC (Panasonic 2026).
Uppvärmning Vattenburen golvvärme via luft/vatten värmepump (Mitsubishi 2023). Garage, gästlägenhet och gästhus luft/luft värmepumpar.
Ventilation FTX-ventilaton med återvinning (Swegon CASA R5 2023).
ÖVRIGT
Omfattande invändig renovering 2015 med nya golv, nytt kök och nytt gästbadrum, invändig målning, nya elkontakter mm. Ny liggande träfasad 2020 på samtliga byggnader inklusive nya svarta ytterdörrar. Tidigare förråd i garagebyggnad om ca 19 kvm omgjort till gästlägenhet med badrum och kitchenette 2021. Gjuten betongpool 8x4m med svetsad liner (djup 1,68 m), saltklorinator, luft/vatten värmepump, pooltak och poolhus 2022. Nyare terrass ca 100 kvm i underhållsfri komposittrall 2023. Nyanlagd trädgård 2023. Luft/vatten värmepump och FTX-ventilation med återvinning installerad 2023. Rengöring av samtliga tak 2025. Rengöring av samtliga fasader 2026. Walk-in-closet byggd 2020, heltäckningsmatta, vit inredning. Två stora markiser 2020.
Infällda takspothligts i vardagsrum och kök. Bose högtalare vardagsrum. Dragna högtalarkablar till masterbadrum, gästbadrum samt till terrass. Nätverk med serverrack. Verisure larm i hus, garage och gästlägenhet. Centraldammsugare.