RUMSBESKRIVNING
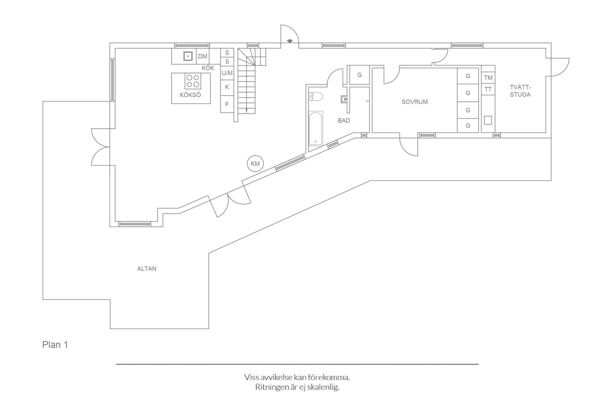
HALL
Välkomnande, stor och ljus hall med högt i tak och en otrolig rymd. Vitpigmenterad ekparkett i enstav på golv och vita väggar. Goda avhängningsmöjligheter och förvaringsmöjligheter i intilliggande klädkammare.
KÖK & ALLRUM
Kök och allrum i härlig social och öppen planlösning med fina ljusinsläpp i tre väderstreck. Här ligger vitpigmenterad ekparkett i enstav på golv och väggarna är vita. Vitt, sobert kök som nästintill blir som en platsbyggd möbel i den öppna ytan från JKE Design med ljusa bänkskivor i silestone. Köksö med goda förvarings- och arbetsytor med induktionshäll med integrerad köksfläkt. I köksön finns även vask och husets centraldammsugare. Integrerad kyl, frys och diskmaskin samt ugn - samtliga från Neff. Generös matplats i förlängningen av köket med pardörrar i glas ut mot terrassen av Cumaru i soligt västerläge.
Vardagsrumsdelen erbjuder stor plats för soffgrupp och i den härliga fönsternischen kan man sitta och njuta av utsikt över trädgård och poolområde. Här finns snygg kamin från Jötul och även här pardörrar i glas ut mot terrassen Cumaru och vidare poolen och trädgården.
SOVRUM
Vitpigmenterad ekparkett i enstav på golv och vita väggar. Plats för dubbelsäng och goda förvaringsmöjligheter i skjutdörrsgarderober. Utgång till terrassen av Cumaru via glasad altandörr.
BADRUM
Helkaklat badrum i sandfärgat kakel med WC, dusch bakom glasdörr, badkar, vask med kommod, spegel, spotlights i tak och golvvärme.
GROVENTRÉ/TVÄTTSTUGA
På husets ena gavel finns groventrén med tvättstuga. Här finns ljus klinker på golv och vita väggar. Goda förvaringsmöjligheter i flertalet garderober och väggskåp samt goda arbetsytor på diskbänk. Tvättmaskin och torktumlare samt värmepanna.
OVANPLAN
ALLRUM
Från trappan nås ovanplanets allrum vilket badar i ljus från de många fönstren dels mot trädgården och dels mot gatan via tre stora fönster i frontespisen.
SOVRUM MED TAKTERRASS
Stort sovrum som lämpar sig fint som master bedroom eller kontor med vitpigmenterad ekparkett i enstav och vita väggar. Stort härligt fönster samt utgång till rymlig takterrass.
SOVRUM 3&4
På husets andra gavel finns två rymliga sovrum med vitpigmenterar ekparkett i enstav på golv och vita väggar. Förvaringsmöjligheterna är goda, i det ena rummet i skjutdörrsgarderob med spegeldörrar och i det andra i klädkammare.
BADRUM
Snyggt badrum med fint ljusinsläpp från takfönster helkaklat i greige klinkerplattor. WC, dusch med vikbara glasdörrar, handfat med kommod samt spegel.
UTEMILJÖ
Inbjudande och privat utemiljö med gräsmattor för lek och en stor härlig terrass som sträcker sig runt huset på träterrass av lyxig Cumaru Här finns pool för svalkande dopp, fristående bastu för härligt hemma-spa och en friggebod för förvaring eller varför inte för hemmakontoret.