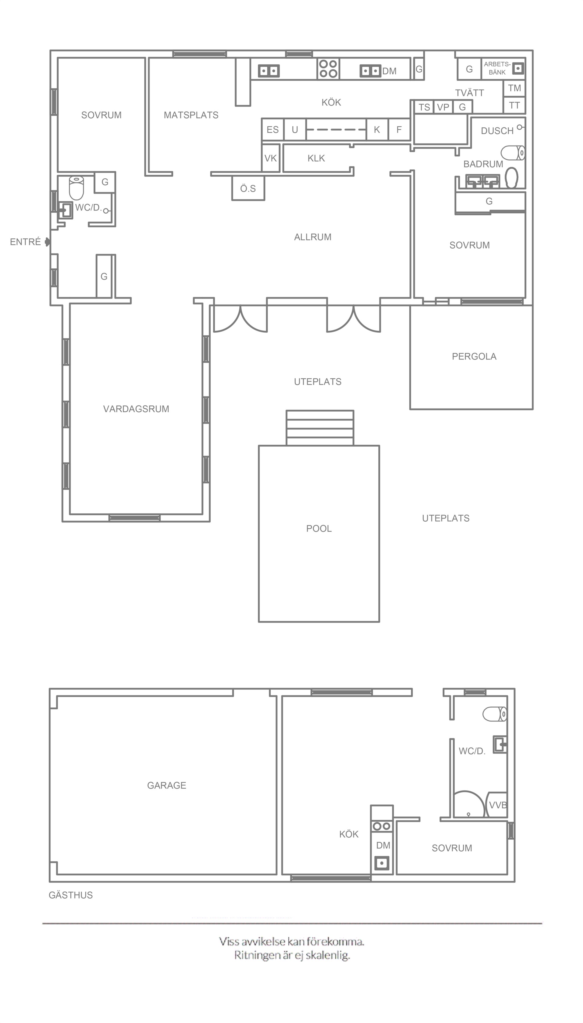
RUMSBESKRIVING
ENTRÉ MED GÄSTBADRUM
Välkomnande entré med plats för avhängning bakom skjutdörrsparti. Spotlights i tak.
Ljust stengolv som för övrigt ligger genomgående i hela huset förutom i ett av sovrummen.
Kaklat fräscht badrum med dusch, toalett och tvättställ. Golvvärme.
SOVRUM
Sovrum med stor skjutdörrsgarderob och parkettgolv.
VARDAGSRUM I VINKEL
Socialt ljust sällskapsrum i vinkel med rikligt med fönster och terrassutgångar. Här finns plats för både tv häng, olika sittgrupper mm. Öppen spis och spotlights i tak.
KÖK
Köket är från UnoForm med tidlös inredning i vitt och körsbär. Barhäng och generös matplats bredvid. Bänkskivor i granit och bra med arbetsytor. Induktionshäll, fläkt, inbyggd ugn (Miele) mikrovågsugn (2007), kyl & frys (2014) diskmaskin (2023) inbyggd vinkyl (Haler 2007) och två vaskar. Spotlights i taket samt IceCube lampor över arbetsbänk.
TVÄTTSTUGA MED EGEN INGÅNG
Renoverad groventré 2017 med arbetsbänkar och gott om förvaring. Tvättmaskin (2023) och torktumlare (2025) och torkskåp (2018), tvättho och bra med skåpsförvaring. Spotlights i tak.
SOVRUM MED BADRUM
Ett stort och inbjudande Masterbedroom med skjutdörrsgarderober och direkt utgång via skjutglasparti till en härlig stenlagd terrass under pergola. Tillhörande helkaklat badrum renoverat 2011 med gott om skåpsförvaring, dusch, dubbla tvättställ, bidé och toalett ger en lyxig känsla av privat svit. Här finns även ett separat klädvårdsrum
GÄSTHUS
Det välskötta friliggande gästhuset om 24 kvm nyttjas flitigt – perfekt för gäster, generationsboende, kontor eller uthyrning. Här finns ett ljust allrum med parkettgolv och öppningsbar dubbeldörr, UnoForm kitchenette med Ice Cube lampor över arbetsbänken, separat sovrum med öppningsbar glasdörr till en liten uteplats samt kaklat badrum med duschm, golvvärme och spotlights i tak.
En komplett insynskyddad liten bostad med vacker stor skyddande rhodondendron.
ÖVRIGT
Fin väggbelysning runt hela huset. Trädgårdsbelysning finns längs med Hedehusvägen. Poolen kan tändas.
Utmärkta busskommunikationer ca 5 minuters promenad från Hedehusvägen och ca 10 minuters promenad till stranden.