RÄTT KÄNSLA – MED HÅLLBARHET I FOKUS
Välkommen till ett hållbart drömboende om 192 kvm på populära Ljungsätersvägen (byggt 2021). Ett massivt trähus från Bosumhus med energiklass B, byggt för att hålla över generationer – både i kvalitet, uttryck och design.
Huset är uppfört i gediget kärnvirke, den innersta och mest motståndskraftiga delen av trädstammen. Träden har fått växa långsamt, vilket ger ett hårdare, tätare och mer hållbart trä – ett naturligt och klimatsmart val med lång livslängd.
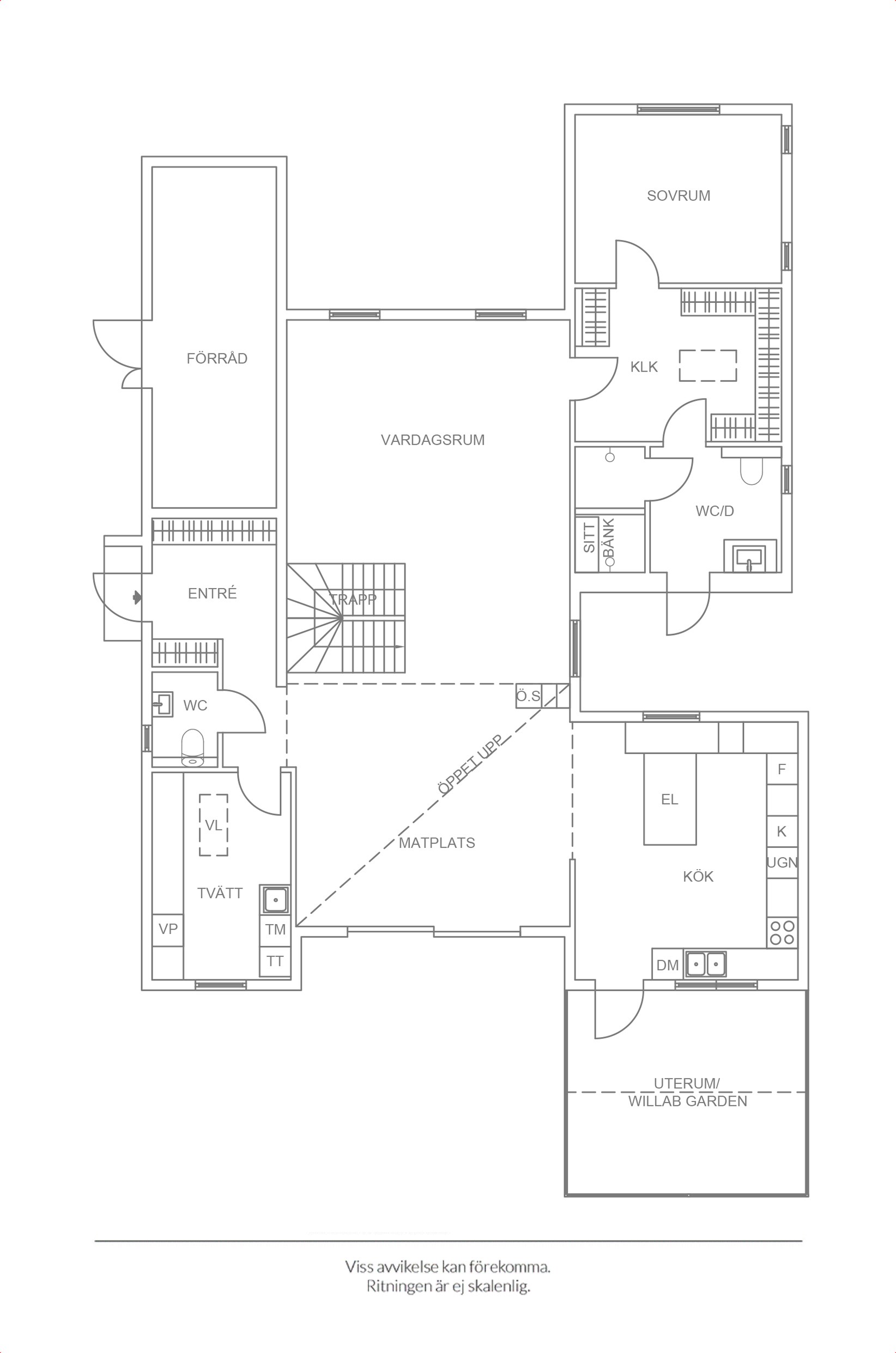
Redan i entrén sätts tonen med I-Wood akustikpanel och platsbyggd sittplats med måttbeställd skinnsits – en varm och inbjudande introduktion.
Platsbyggt kök från JKE Design är hemmets hjärta. Köksön rymmer 4–5 sittplatser och övergår naturligt i den generösa matplatsen med utrymme för upp till 12 gäster. Även här återkommer akustiktak och noggrant utvald belysning från Tom Dixon och Gubi, som skapar en stämningsfull varm atmosfär. Den lyxiga mastersviten erbjuder walk-in closet och ett snyggt privat ensuite-badrum
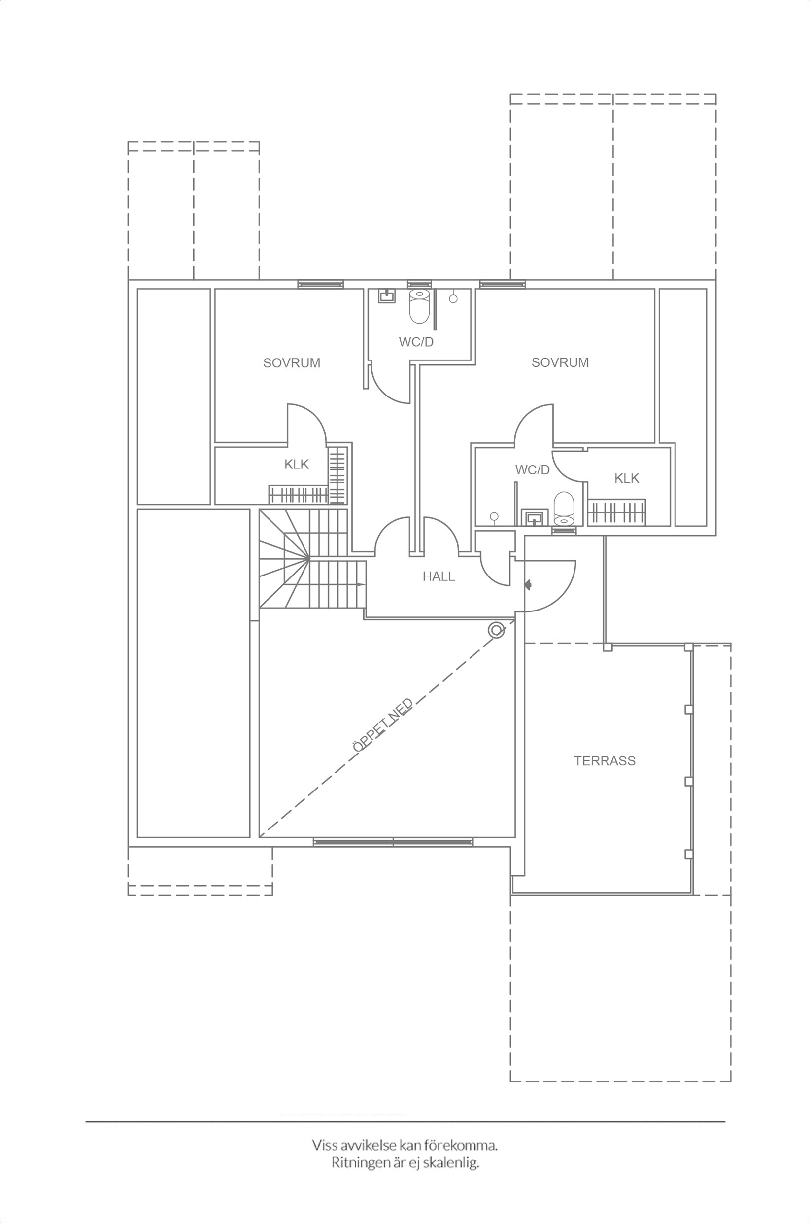
Ovanvåningen är perfekt disponerad för barnen med två sovrum, enskilda badrum och walk-in-closet, samt en stor takterrass som förlänger bostadens sociala ytor. Garage och stor uppställningsplats för ett antal bilar.
Utemiljön är något alldeles extra. Den anlagda poolen är utrustad med jetswim, saltklorinator och egen värmepump. Generösa ytor i hårdträ och uteklinker ramar in och skapar en exklusiv resortkänsla.
Takterrass i sibirisk lärk med glasräcke, uterum på isolerad platta, belyst trädgård och genomtänkt utebelysning som samspelar med hemmets interiöra ljuskoncept skapar en magisk helhet – året om.
På tomten finns även ett fristående Attefallshus som nyttjas flitigt. Huset erbjuder, kök, matplats, två sovloft, badrum och en smakfull bastu med välvda sittlavar i Thermobehandlad ask och rogivande svarta väggar med ledbelysning. Runt hörnet finns en utedusch. Garage och stor uppställningsplats för ett antal bilar och cykelförråd.
Välkomna till ett populärt läge några hundra meter från stranden, skolor och dagis, restauranger och det nyrenoverade hotellet Strandvillan.
Det finns även en pågående plan gällande hamnen i Falsterbokanalen där kommunen kommer att utveckla småbåtshamnen och intilliggande hamnplaner till en attraktiv, funktionell och småskalig mötesplats.
HALL
Inredning JKE Design, lucka Nordic Silk matt svart, handtag valnöt Manta från Beslagdesign, I-Wood akustikpanel vid sittplats med måttbeställd skinnsits från Kvarnby textil, klädhängare Gubi Matégot coat rack, lådor på vägg Frame by Lassen Audo Copenhagen, lampa Buster and Punch på väggen, lampa i taket Classic Ufo från Oisoi, lampa utanför toalett Buster and Punsch.
Gästtoalett: Vask från Betongdesign med belysning under och eluttag, I-Wood akustikpanel på vägg och tak, hängande lampor Dansani, kakel Mirage Norr Svart, blandare Hans Grohe, toalett vägghängd IFO Spira Art med Geberit Sigma spolplatta.
TVÄTTSTUGA
Skjutdörrar och skåp/luckor (Nordic silk grå matt) från JKE design, knoppar Graf matt svart, förvaring bakom skjutdörrar ELFA, vask och skiva rostfri Franke, blandare Hans Grohe, kakel Mirage Norr Svart, hylla över vask Tapwell, Tvättmaskin Siemens 10 kg med I-Dos, torktumlare Siemens 9 kg, lampa hängande vid fönster Koppar Working Lamp Designhouse Stockholm, hängande lampor i taket Manhattan från B Sweden, ledlist bakom skjutdörrar.
MATRUM
Hängande lampor Melt från Tom Dixon, lampa på vägg Kobra, hängande lampa vid trappa Multi light från Gubi, lampa utanför dörrar ovanvåning Hayden by Ryden, fönsterspot i övre fönstersmyg som tänds i samband med ytterbelysning, akustiktak Svart Line från Troldtek, nattlampor (ca. 0.5 w) i vägg för svag golvbelysning, sittplats för 12 personer.
KÖK
Inredning från JKE Design, lucka Nordic One Fenix svart (vid kyl och köksö mot kyl), Nordic Modern Rökt Ek med urfrästa handtag (vid diskbänk) samt Nordic One Rökt Ek ( köksö som vätter mot matrum), maskiner från Siemens, kombinerad micro och ugn på den övre ugnen, handtag Buster and Punch smoked bronze, diskmaskinsavstängning och blandare Hans Grohe, vask Nordic Tech bronze, vinkyl Liebherr med belysning och ventilation, integrerad kyl och frys, induktionshäll med fläkt och frånluftsanslutning, kakel 60 x 60 Metallo Ruggine, belysning tak Buster and Punch spotar, takkrona Buster and Punch, läslampa vid soffa Belid, vägglampor vid spis Castsconce och vask Castshape 3 från Audo Copenhagen, sits vid soffa måttbeställd från Kvarnby Textil, eluttag under köksö, fönsterspot i fönstersmyg tänds i samband med ytterbelysning, nattlampa i vägg mot matplats, vikfönster vid diskbänk från Willab, sittplatser vid köksö 4-5 pers.
VARDAGSRUM
I-Wood akustikpanel bakom TV, kanal i vägg för sladdar, nattlampa i vägg, ledlist bakom Corniche, trappa från Skillinge Svets och Vitabytrappan – steg i svart ek, ledlister som belyser trappan, hängande belysning (vid fönster) Best lite från Gubi, kamin Davos P låg Nordpeis med friskluftsintag (provtryckt 2021 och sotad 2025).
SOVRUM
Garderober IKEA metod med knoppar och handtag Mässing från Buster and Punch. Sängbord/skåp Frame by Lassen Audo Copenhagen, spröjsat öppningsbart fönster – även de mindre fönstren mot söder är öppningsbara vädringsfönster, sovrummet ligger ”utanför” huskroppen vilket gör det väldigt avskilt – klädkammare mellan badrum och sovrum så man inte stör sovrummet.
KLÄDKAMMARE
Inredning (rakt fram och till vänster) från IKEA. Inredning ön, vitrinskåp och till vänster innan sovrum från JKE design Svart ek, knoppar Mässing Buster and Punch, ledlist ovanpå garderoberna rakt fram, spotar i tak från Buster and Punch, hängande lampa Enigma från Louis Poulsen, spegel Svedbergs med justerbart ljus, nattlampor i vägg för svag golvbelysning.
BADRUM
Vask från betongdesign med underskåp från Dansani mörk ek med belysning under, Kakel Mirage Norr Farge, toalett vägghängd IFO Spira Art med Geberit Sigma spolplatta, spegel Dansani i brun ek med justerbar belysning, högskåp Dansani brun ek, handtag Buster and Punch krom, hängande lampor Klot rökfärgade från Svedbergs, glasdörr ARC från Inr, golvbrunn Unidrain, blandare och dusch Raindance massage från Hans Grohe, handdukstork från Smedbo med timerfunktion, sminkspegel med ledbelysning från Smedbo, hyllan ovan toalett Tapwell Krom, frostad låsbar terrassdörr som leder ut till spång till uteplats.
OVANVÅNINGEN ERJBUDER
SOVRUM 1
Trinity täljd ekplank, Velux takfönster (öppningsbart), klädkammare samt förrådsutrymme, ledlist i taket vid säng, utanför sovrum 1 nattlampa i vägg för svag golvbelysning,
TOALETT
Toalett Ifö Spire, spegel Dansani Corona med belysning, duschvägg Svedbergs Rista, blandare och dusch Gustavsberg Estetic square, handdukstork Svebergs Amor svart, kommod Macrodesign Crown svart (med eluttag), handtag Beslagdesign läderlindad brun nickel, Kakel Hmade Cottocemento Prepperi och i dusch Prisma vit matt, ledlist i taket
SOVRUM 2
Golv Trinity täljd ekplank, klädkammare innanför badrum, ledlist vid södervägg.
TOALETT
toalett Ifö Spire, spegel Dansani Corona med belysning, duschvägg Svedbergs Rista, blandare och dusch Gustavsberg Estetic square, handdukstork Svebergs Amor svart, kommod Macrodesign Crown svart (med eluttag), handtag Beslagdesign läderlindad brun nickel, Kakel Hmade Cottocemento Prepperi och i dusch Prisma vit matt, ledlist i taketTT
Innerdörrar: Swedoor Stable natur ek svart. Trycken Kastrup brunt läder från Beslagdesign.
ÖVRIGT
YTTERDÖRR
Snickar Per (dubbla lås) med dragstång och överljus, förråd 1 m (för att få in skrymmande saker) Snickar Per.
Fönster: Aluminiumbeklädda Traryd Optimal isolerglas.
LJUD
Ljudsystem Bowers and Wilkins (komponenterna utvalda av och inköpta på HiFi klubben för att passa husets förutsättningar), takhögtalare CCM 7.5 S2 (fram) och CCM 684 (bak), subwoofer DB4S.
2 st. AMP från Sonos som styr ljud från TV och musik, komplementljud i övriga delar av nedanvåning 2 st. Sonos Five samt 3 st. Sonos One
FÖRRÅD
Golvvärme och möjlighet att inreda som bostadsyta (ingång via hall möjlig – inga ledningar i den väggen).
TAKTERRASS
Trädeck av sibirisk lärk, glasräcke Inoxa Pacific
UTERUM
Willab aluminum, gjuten isolerad platta
ATTEFALL (byggt höst 2022-vår 2023):
KÖK
JKE Design Woodland, fläkt Smeg Colonial, kyl integrerad Smeg, induktionshäll Smeg, fläktkopa Smeg Colonial hood, ugn pyrolytisk multifunktionsugn anthrezit Smeg, vask Smeg svart, bänkskiva laminat betongmönstrad, blandare Tapwell Grotesco i mässing, beslag Helix Antik brons från Beslagdesign, Luft/luft värmepump med möjlighet till A/C, platsbyggd soffa (70 cm sittdjup för att kunna användas som säng) med förvaring under (öppningsbara sitsar) och eluttag , skjutbar trappa, Akustiktak Troldtekt i allrum och toalett.
BASTU
Lav thermobehandlad Asp med belysning av ledlist i vägg och vid golv, väggar svart asp, belyst aggregat från Harvia, bastudörr glasdörr Harvia Black Line grå, klinker Omnia Ceppo Grey från Keope.
TOALETT
Badrumkommod handtag Beslagdesign läderlindad brun nickel, duschblandare FM Mattson Siljan, elektrisk golvvärme badrum, duschdörr Bath Life ( 45 grader), handdukstork Bath Life Lod svart, handfat grå marmor på mörk bänkskiva, toa Ifö spira.
ÖVRIGT
Utedusch Hans Grohe Croma kopplat till varmvattenberedare, fönsterspot i bastu och matplats som tänds med utebelysning, precis som i huset sitter MDF bakom all gips, sedumtak som döljer ljud från fallande kottar samt värmeisolerande på sommaren.
Sovloft för 2 pers på vardera sida, stallgolv laserat med Jotun sjösand.
Väggarna målade med Detale CPH.
UTEPLATS
Pool, anlagd 2022. Uteplats på gjuten platta med 20 mm uteklinker, trädeck av Bangkirai hårdträ, murad pool med 1.5 mm platsgjuten liner, gjuten isolerad platta i botten, jetswim Brillix elegance, saltklorinator, sandfilter, egen värmepump.
Belysning: Belysning runt om i naturen och garagefasad med Cortenskärmar av Lights On, fasadbelysning och pollare från Nordlux (Alludra seaside brown) och Lucide, belysta trappsteg till ingång med ledlist.