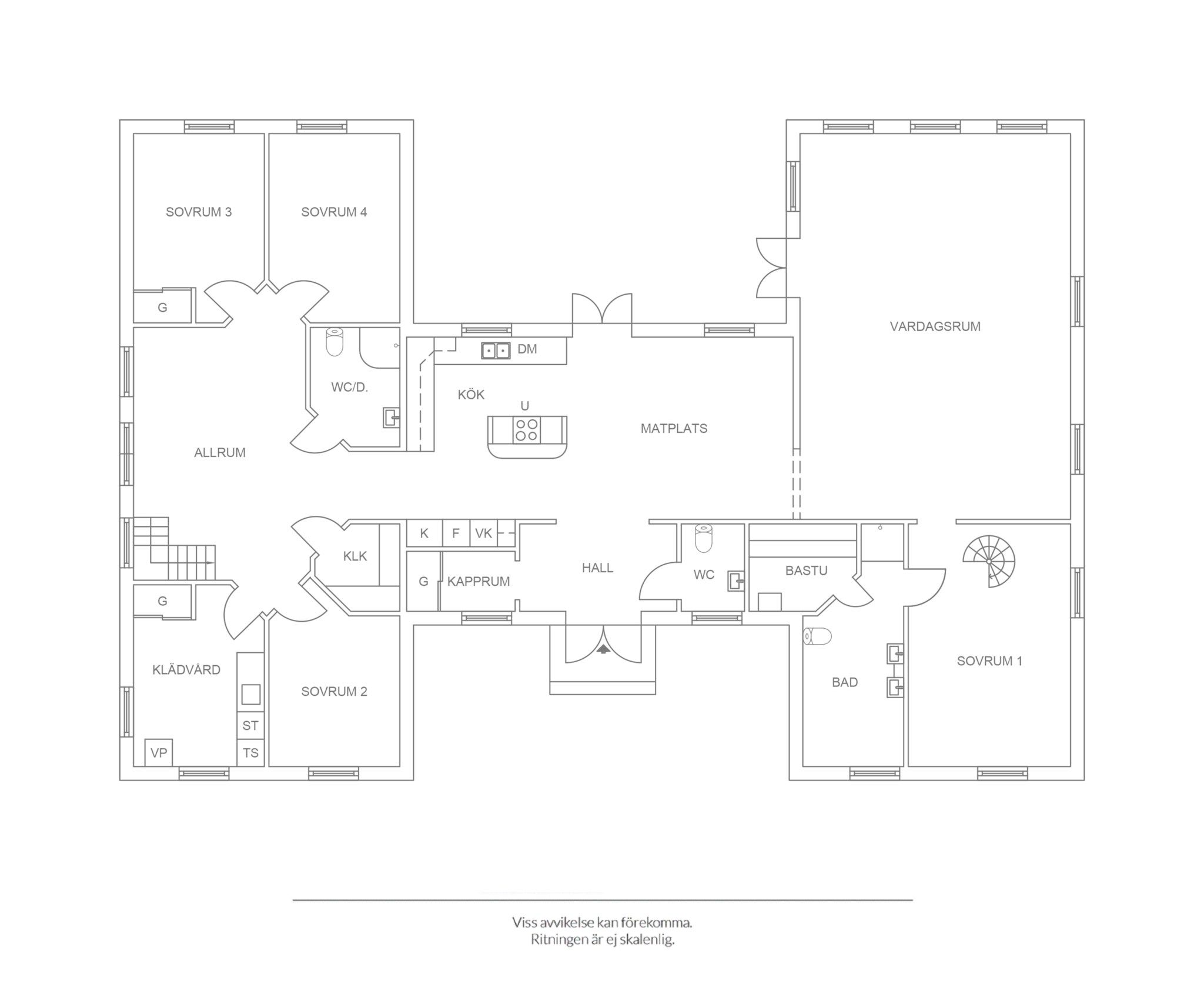
RUMSBESKRIVNING
HALL
Välkomnande hall med klinkers på golv och målade väggar med läcker fondtapet. Goda avhängnings- och förvaringsmöjligheter i separat del av hallen.
GÄST-WC
Fin petrolfärgad klinkers lagd i fiskbensmönster på golv och tapet på väggar. WC, handfat och spegel ovan.
KÖK & MATPLATS
Generöst kök med tillhörande matplats med klinker på golv, ljusa väggar och tapetserad fondvägg. Kök i vitt och ljusgrönt utförande från Vedum med bänkskivor i svart granit och ljusgrå Silestone. Kyl, frys, vinkyl, ugn, mikro, induktionshäll, spisfläkt och integrerad diskmaskin. Utsikt via de spröjsade fönstren samt de dubbla altandörrarna ut mot den grönskande, anlagda trädgården och en härlig rymd tack vare att det är öppet upp i nock. Matplatsen är stor och erbjuder plats för 10-12 personer.
VARDAGSRUM
Stort, härligt vardagsrum med öppet upp i nock. Här ligger vitpigmenterad ekparkett på golv och väggarna är ljusa. Stort ljusinsläpp via många fönstersättningar och utgång via dubbla altandörrar ut mot trädgården. Ytan i vardagsrummet är så pass stor att man med enkelhet kan få plats med både matplats och soffgrupp här.
MASTER BEDROOM
Ekparkett på golv och gröna väggar. Plats för dubbelsäng och möbler för förvaring om man önskar.
BADRUM EN-SUITE
Nyligen renoverat, snyggt badrum med ljus klinkers på golv och ljusa helkaklade väggar med grön, marmorliknande kakelplatta som detalj på en vägg samt i duschen. WC, dubbla handfat med kommod, spegel, spotlights i tak, dusch med glasdörr och bastu.
OVANPLAN 1
ARBETSRUM
Via spiraltrappa i master bedroom nås det som idag nyttjas som arbetsrum. Målat trägolv och ljusa väggar. Ljusinsläpp och fin utsikt via takfönster och goda förvaringsmöjligheter i skjutdörrsgarderob från Roland Design som löper längs med rummets ena vägg.
SEPARAT DEL
I husets andra flygel finns en helt separat del som lämpar sig perfekt för barnen eller varför inte för gästerna.
ALLRUM
Vitpigmenterad ekparkett på golv, ljusa väggar och spotlights i tak. Goda förvaringsmöjligheter i intilliggande, stor klädkammare.
SOVRUM 3
Fint och välplanerat sovrum med vitpigmenterad ekparkett på golv och ljusa väggar.
SOVRUM 4 (eller sovrum 4&5)
Stort och härligt sovrum med vitpigmenterad ekparkett på golv och ljusa väggar. Två fönster ut mot trädgårdens vackra vy. Detta rum har tidigare varit två och kan med enkelhet återställas till det om man önskar.
BADRUM 2
Renoverat badrum som är helkaklat i ljus färgsättning. WC, handfat med kommod, spegel samt dusch med vikbara glasdörrar.
OVANPLAN 2
ALLRUM (& sovrum om man vill)
Stort allrum på husets ovanplan med bra ljusinsläpp via två takfönster och ett fönster på gaveln. Mörk heltäckningsmatta och vita väggar med tapetserad fondvägg. Detta allrum är så stort att man kan dela av det och få såväl ytterligare ett sovrum och ett allrum vid behov.
SOVRUM
Mörk heltäckningsmatta på golv och vita väggar. Stort och bra med plats för rejäl säng. Ljusinsläpp och utsikt via generöst takfönster.
TVÄTTSTUGA/GROVENTRÉ
Direkt i anslutning till bilarnas uppställningsplats nås tvättstugan/groventrén. Här ligger klinkers på golv och väggarna är ljusgråa. Nibe frånluftsvärmepump, tvättmaskin, torkskåp, väggskåp för förvaring och bänkskiva för god arbetsyta. Gott om plats för avhängning.
UTEMILJÖ
Tack vare nuvarande ägares stora trädgårdsintresse är husets trädgård en total dröm som erbjuder en privat oas att verkligen koppla av i och njuta av. Här samsas stensatta terrasser, både under bar himmel och under tak, med en skyddad terrass på trädäck med tak och väggar. På tomten finns sol från morgon till kväll och man flyttar gärna runt i de olika 'rummen' alltefter hur solen förflyttar sig. Här finns pool, utekök, utedusch och en vit mur som omfamnar och ramar in. Utanför löper grönskande häck för totalt insynsskydd. På husets ena sida finns stor gräsmatta för lek och med plats för studsmatta och fotbollsmål om så önskas. Stort förråd för förvaring och givetvis finns även garage.