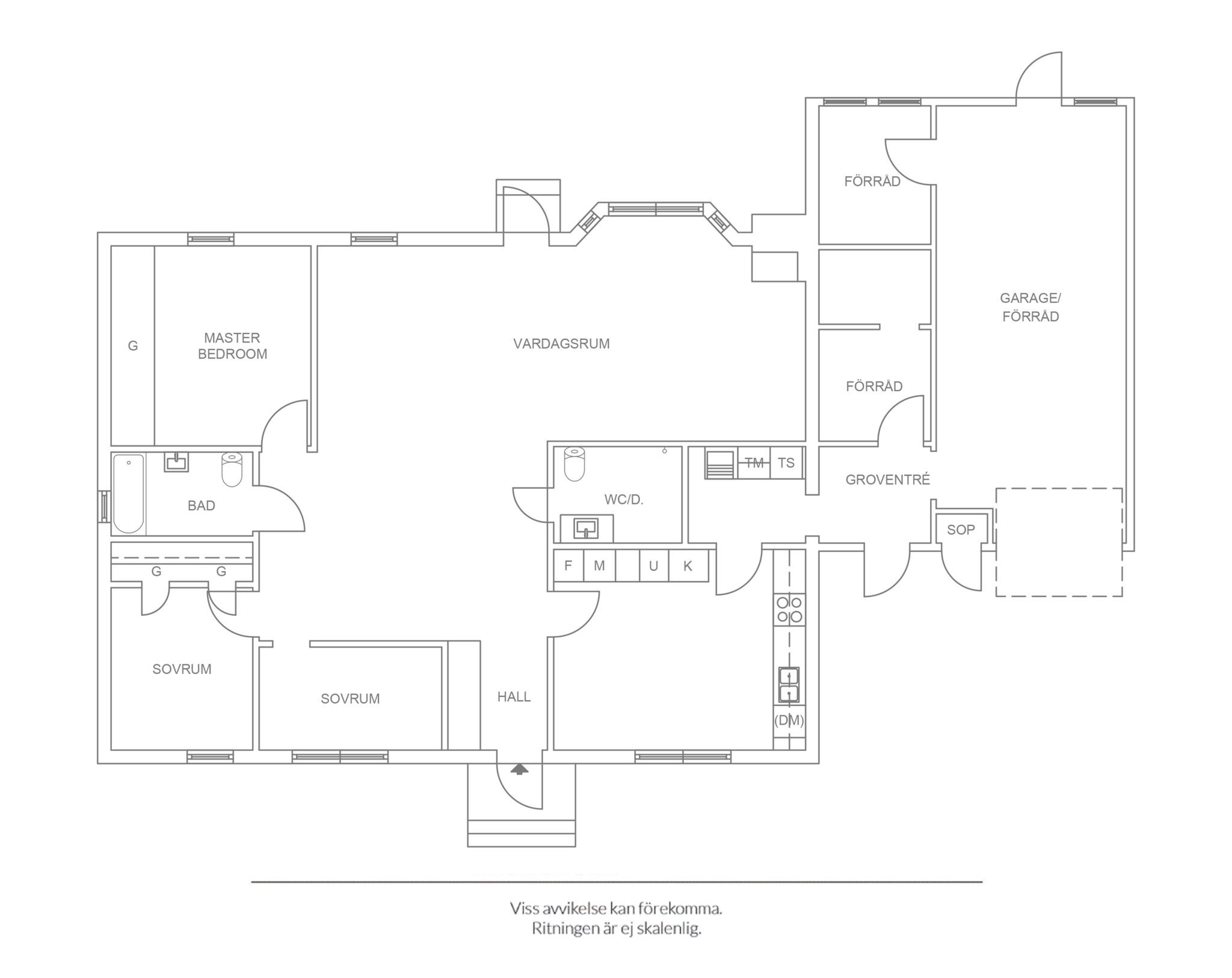
RUMSBESKRIVNING
HALL
Grå klinkers på golv och vita väggar med akustikpanel i ek som pryder ena väggen. Goda avhängningsmöjligheter och förvaringsmöjligheter i garderob med skjutdörrar i spegelglas.
KÖK
Grå, stora klinkers på golv och ljusa väggar. Snygg köksinredning från 2020 med goda förvaringsmöjligheter i många bänk- och väggskåp i grått utförande från Ikea. Bänkskiva på bänkskåp samt på köks-ö i ljus Silestone. Integrerad kyl (Bosch 2020), integrerad frys (Bosch 2020) samt integrerad diskmaskin (Bosch 2020). Kombiugn (Siemens 2020), ugn (Siemens 2020) och värmelåda (Siemens 2020). Induktionshäll med integrerad fläkt (Siemens 2020) samt fyra sittplatser vid köks-ön. Spotlights i tak och fin utsikt över trädgården i två väderstreck.
ALLRUM & MATPLATS
I social öppen planlösning ligger matplatsen och vardagsrummet. På golvet finns ekparkett i enstav, väggarna är vita och man har punktvis fällt in spotlights i tak. Gott om plats för stor soffgrupp och generös matplats samt utgång till terrass på trädäck i soligt sydvästläge.
BADRUM 1
Snyggt, badrum som renoverades 2017 med travertin på golv och helkaklade väggar i grått utförande av granitkeramik. Vägghängd WC, handfat med kommod, spegelskåp med infälld belysning samt dusch bakom glasdörrar. Spotlights i tak, golvvärme och musikanläggning.
MASTER BEDROOM
Ekparkett i enstav på golv och ljusa väggar. Plats för dubbelsäng och fint ljusinsläpp från fönster ut mot pergola.
Goda förvaringsmöjligheter i garderob bakom skjutbara spegeldörrar och spotlights i tak.
SOVRUM 2
Heltäckningsmatta på golv och ljust grå väggar. Garderober för förvaring och spotlights i tak.
SOVRUM 3
Ekparkett i enstav på golv och vita väggar. Används idag som arbets- och gästrum. Spotlights i tak och fint ljusinsläpp mot allrum och matplats via fönster högt upp på väggen.
BADRUM 2
Ljusgrön plastmatta på golv och vit plastmatta på väggar. WC, badkar, handfat med kommod samt spegelskåp med förvaring.
TVÄTTSTUGA
Praktisk tvättstuga som moderniserats under 2025 med goda förvaringsmöjligheter i vägg- och bänkskåp från Ikea samt god arbetsyta på vit bänkskiva. Tvättmaskin och torktumlare (båda från Bosch 2016).
GROVENTRÉ
Klinkers på golv och ljusa väggar. Goda förvaringsmöjlgheter i intilliggande förråd samt goda avhängningsmöjligheter.
INTEGRERAT FÖRRÅD OCH GARAGE
Stort och rymligt garage med förrådsdel från vilket man når groventrén och vidare huset.
UTEMILJÖ
Välplanerad och privat utemiljö med gräsmatta för lek och terrass på trädäck med pergola och öppen spis. Stort härligt poolområde (2023) på husets baksida med plattsättning i beige utförande samt plats för loungegrupp och solstolar. Vackert högt gräs och smäckra tallar som ramar in.
PARKERING
Plats för två bilar på stenlagd uppfart samt plats för ytterligare en bil i integrerat garage.