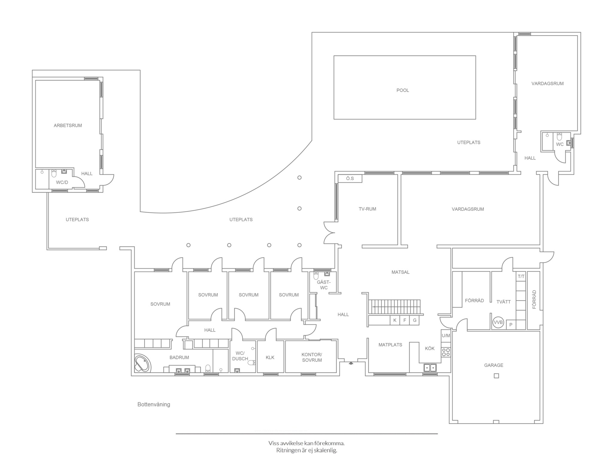
RUMSBESKRIVNIN G
ENTRÈ
Välkomnande och rymlig entré med vackert klinkergolv och bra avhängningsmöjligheter. Till vänster kontor/sovrum. Rakt fram ett gäst-wc med fönster, vita väggar och klinker på golvet.
KÖK
Till höger finns ingång till ett modernt vitt kök från Kvänum med valnötsdetaljer och maskinpark från Gaggenau och Miele. Matplats för 4-6 personer. Klinkergolv.
GROVKÖK
Från kök når man praktiskt grovkök med bra förvarning. Dörr till garage.
GARAGE
Garage för två bilar, klinkergolv och ljusinsläpp från två takfönster.
TVÄTTUTRYMME/GROVENTRÉ
Tvättavdelning med tvättmaskin & torktumlare (Bosch 2024) och torkskåp. Luft/ Vattenvärmepanna (Diakin 2024) .Utgång till trädgård.
VARDAGSRUM
Ett generöst vardagsrum om Ca: 50 kvm med parkettgolv, vitmålade väggar, stora fönsterpartier som skänker ljusflöde och en vacker vy mot trädgården och poolområdet.
TV-RUM
Separat tv-rum med öppen spis, parkettgolv, utgång till terrass under tak.
MATSAL
Rymlig matsal med parkettgolv och vitmålade väggar. Matplats för 10-12 personer. Trappa upp till ovanvåning.
OVANVÅNING
En perfekt tonårs/gästavdelning med sovrum, allrum samt badrum med dusch. Ljusinsläpp från takfönster. Aircondition.
RELAXAVDELNING
Separat och avskild avdelning. Här erbjuds ett rum öppet upp till nock, badrum med dusch och egen ingång. Via skjutdörrar från Hajom kommer vi ut i trädgården och poolområdet. Klinker på golvet och vitlaserade träväggar och tak med spotlight (Porsche design) och synliga bjälkar. Vattenburen golvvärme.
Härifrån når vi de två knuttimmrade gäststugorna, diskret placerade i skogen.
SOVRUMSAVDELNING MED FYRA RUM
Längst ned ligger Master bedroom med tillgång till helkaklat badrum med separat dusch och bubbelbadkar. Till höger i korridoren ligger de övriga tre sovrummen med parkettgolv och badrum. Helkaklat badrum med dusch ligger mittemot de tre övriga sovrummen.
FRILIGGANDE KONTOR/ATELJÈ
Ett friliggande hus, vitlaserade träväggar och tak med spotlights och synliga takbjälkar. Ett stort rum med parkettgolv, skjutdörrspartier från Hajom ut mot trädgården. Helkaklat badrum med dusch. Elgolvvärme. Aircondition-Luft/luft värme.
UTEMILJÖ
Insynsskyddad ljus parkliknande hörntomt med Offerdalskiffter (2020) och renoverad pool (10*5 ) med murad trappa. Automatisk bevattning av gräsmattan. Robotgräsklippare finns.