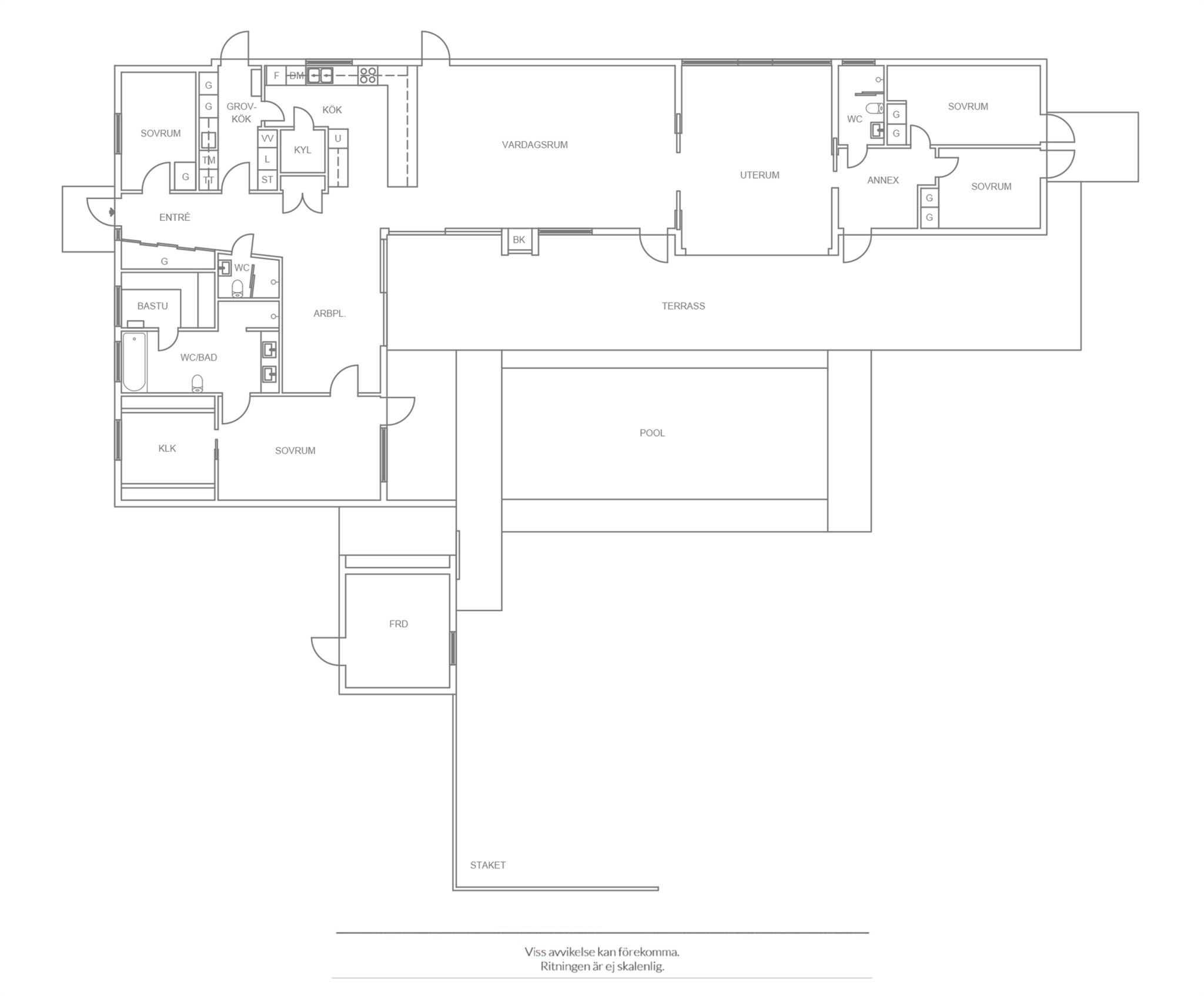
RUMSBESKRIVNING
ENTRÉ
Läckert svart skiffer på golvet och avhängningsmöjligheter via rymlig skjutdörrsgarderob.
Trätak med inbyggda spotlights genomgående i huset förutom i hall och tvättrum.
SOVRUM 1
Mindre sovrum med vitlaserat trägolv. Garderob
BADRUM 1
Kaklat och fräscht med skiffergolv, vägghängd toalett, platsbyggt tvättställ och dusch.
TVÄTTSTUGA
Rejäl tvättstuga med skiffergolv och bra skåpsförvaring och skjutdörrsgarderober
Härifrån når vi även köket. Glasdörr ut till trädgård.
Tvättmaskin & torktumlare (Miele) torkskåp, tvättho.
HALL/ ARBETSPLATS
En ljus trevlig plats som idag används som kontor med platsbyggd skåpsinredning och läcker inbyggd vinkyl. Direktkontakt mot uteplats och pergola via Hajom skjutglasparti.
Vitlaserat ekgolv.
MASTERSVIT MED KLÄDVÅRD OCH BADRUM
En avskild sovrumsavdelning med glasdörr ut till pergola.
Stort klädvårdsrum med platsbyggd inredning i ek.
Vitlaserat ekgolv i sovrum och klädvårdsrum.
Kaklat badrum med dubbla tvättställ, dubbla duschar, bastu, inbyggt badkar med jetstrålar, vägghängd toalett, handdukstorkar och infällda speglar. Bänkskiva i Carraramarmor.
KÖK MED VARDAGSRUM
Ett fullutrustat kök från UnoForm med barhäng och matplats bredvid.
Extra stor ugn med spishäll (Miele 2010) spisfläkt (Thermex 2010) frys med isfunktion (Husqvarna) stort kylrum, diskmaskin (Miele 2017), mikrovågsugn med kombinerad varmluftsugn, ångugn (Miele 2010) inbyggnadsugn, tre tallriksvärmare, espressomaskin.
Bänkskiva i svart granit.
Vardagsrum med vitlaserat ekgolv, genomgående öppen spis och Hajom skjutglaspartier/terrassdörr på vardera sida om den öppna spisen.
ALLRUM / UTERUM
Ett härligt åretrunt rum som fungerar som en förlängning till vardagsrummet. Skiffergolv och platsbyggd skåpsinredning. Schuco skjutglaspartier ut till träterras.
SOVRUMSAVDELNING
Vidare finns här två sovrum med garderober och utgång till träterrass med utedusch.
Kitchenette med plats för mindre matbord. Även här utgång till terrass.
Vitlaserat ekgolv genomgående förutom i badrum.
Kaklat badrum med skiffergolv, vägghängd toalett , platsbyggt tvättställ och dusch.