Logotyp

Höllviken

Ivars väg 2


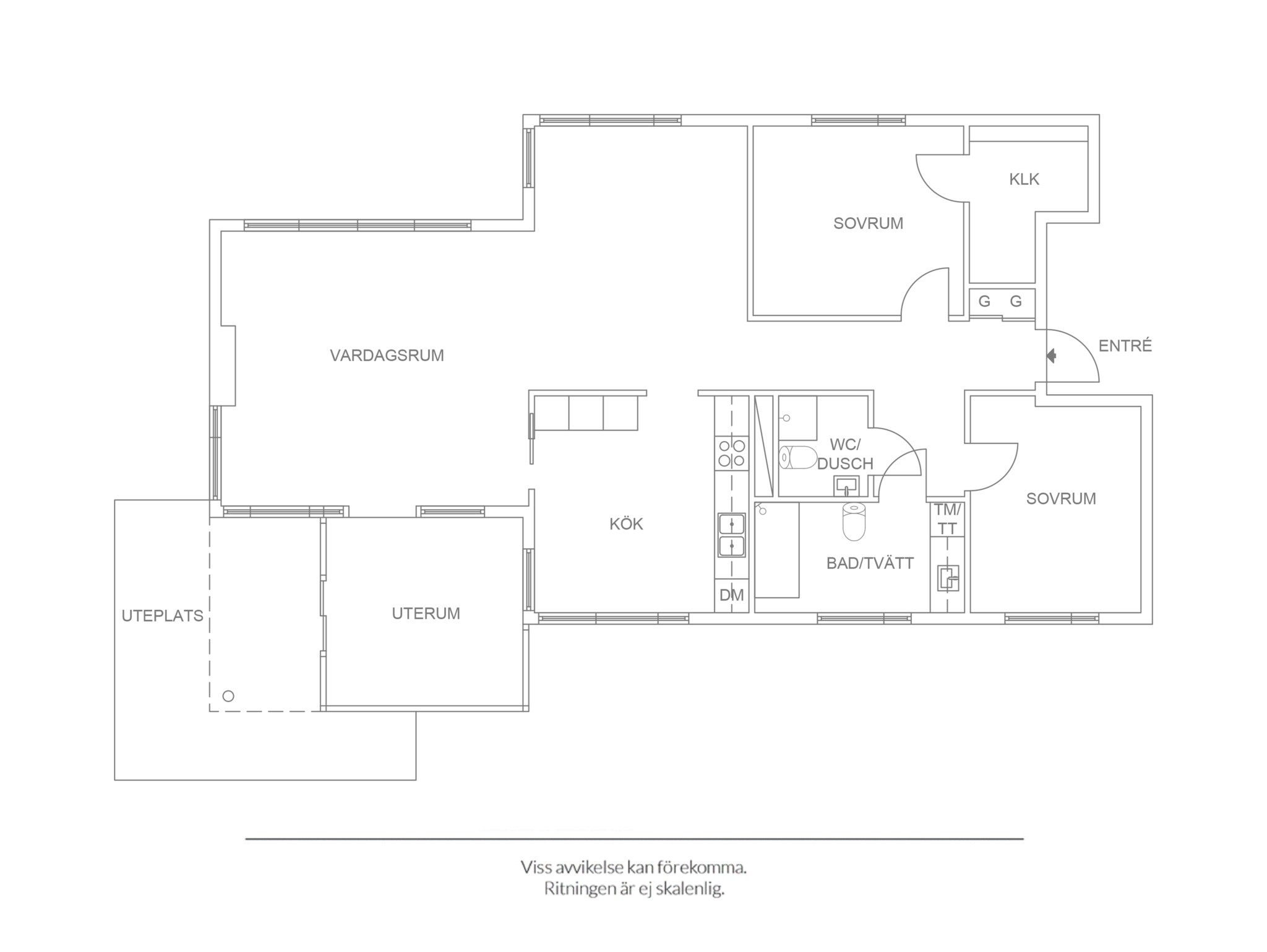
VILLAKÄNSLA PÅ ETT PLAN
Ett sällsynt tillfälle att förvärva en välplanerad marklägenhet om 106,5 kvm med härlig villakänsla och vy mot havet från de flesta rummen.
Här bor du ljust och trivsamt med stora fönsterpartier som släpper in rikligt med dagsljus.
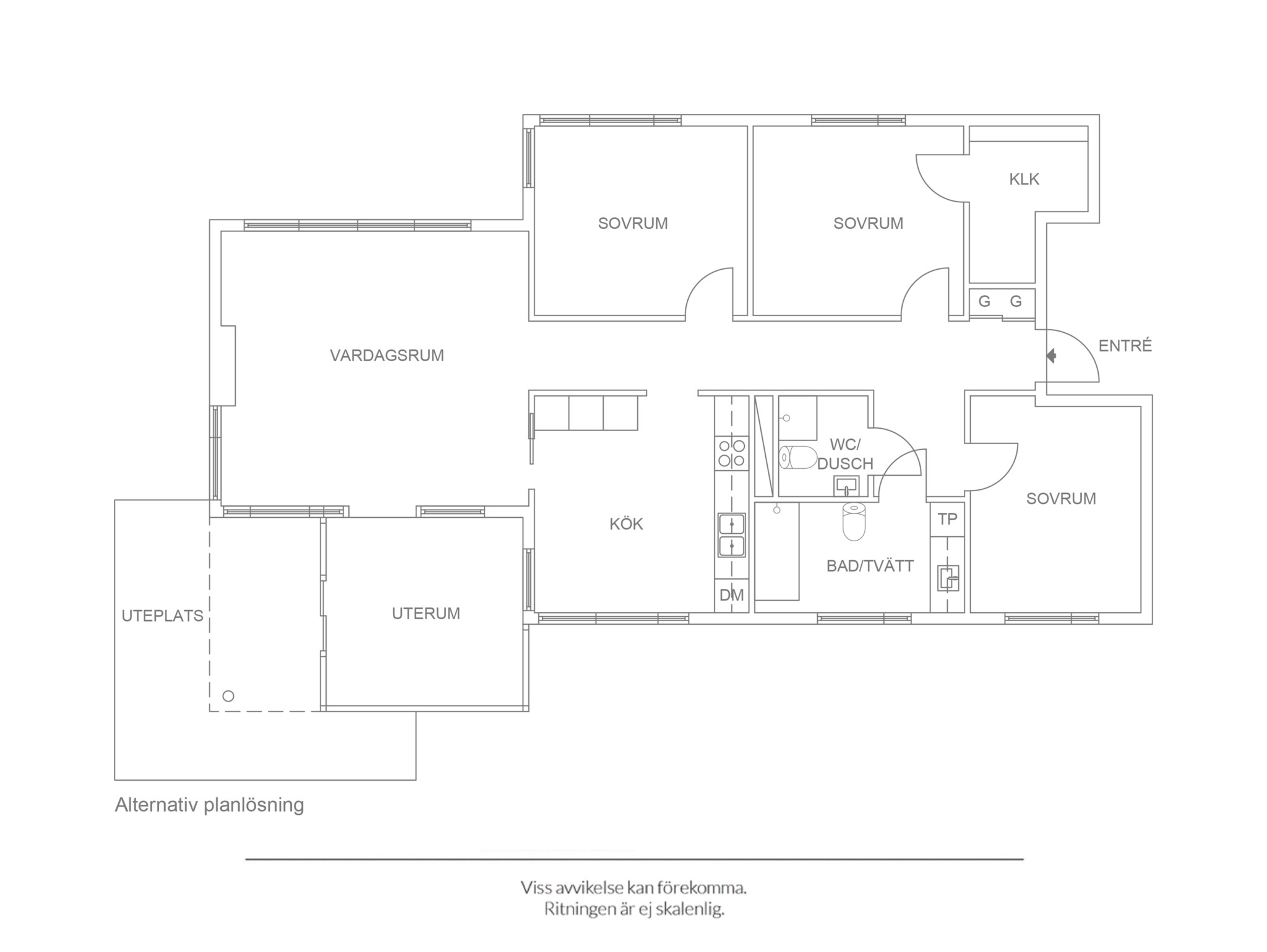
Den genomtänkta planlösningen erbjuder två sovrum (kan bli tre ), två badrum – varav ett med tvättmöjligheter.
Det inbjudande köket erbjuder gott om plats för matbord och bjuder på fin utsikt. Intill ligger ett trivsamt stort vardagsrum med kakelugn.
Lägg därtill uterummet som fungerar som en naturlig förlängning av bostaden och leder vidare ut till en intilliggande uteplats.

Välkommen till ett bekvämt boende mitt i Höllviken på Ivars väg med gångavstånd till Höllvikens bykärna med restauranger, busskommunikationer, affärer och bibliotek.

Ivars väg 2

Boarea 106.5 kvm
Uppl.form Bostadsrätt
Antal rum 3 rum och kök
Byggår 2002
Månadsavgift 6 955 kr/mån
Våning 1 av 3. Hiss finns.

Adam Strandh

Ansvarig fastighetsmäklare
[email protected]

Visning

Kontakta ansvarig mäklare för bokning av personlig visning.