RUMSBESKRIVNING
ENTRÉ
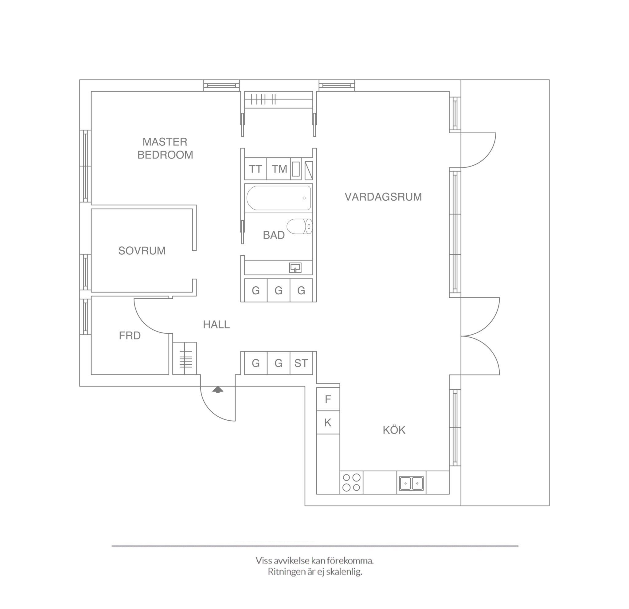
Välkommen in! Entré och hall med klassiskt grått klinkergolv, målade väggar och plats för mindre hallmöbel. Goda avhängningsmöjligheter och direkt access till ett litet rum som kan agera ytterligare plats för avhängning av ytterkläder och skor.
KONTOR/WALK-IN-CLOSET
I direkt anslutning till hallen ligger detta mindre rum som lämpar sig perfekt som litet kontor eller walk in closet.
KÖK
Modernt och stilrent kök från HTH med vita släta luckor, dolda handtag, bänkskiva av laminat och ljust kakel ovan bänkskiva. Utrustat med ugn, fläkt, mikrovågsugn, induktionshäll, kyl och frys samt diskmaskin. På golvet ligger vitlaserad askparkett, spotlights i tak.
SÄLLSKAPSYTA (VARDAGSRUM/MATPLATS)
Vardagsrum som har sina naturliga indelningar även om det är öppet. Här har man satsat på mycket ljusinsläpp och terrassdörrar till den ljuvliga balkongen ger en fin känsla och extra närhet till de vackra omgivningarna. Rummet är inrett med både mat- och soffmöblemang och tack vare den öppna planlösningen är valmöjligheterna många. Trevligt!
BALKONG/UTEPLATS
Dubbla utgångar leder ut till den ljuvliga balkongen där man mer än gärna njuter av både sol och vy över vackra omgivningar.
BADRUM
Smakfullt badrum med helkaklade vita väggar och mörk klinkers på golv. Toalett, duschhörna med badkar, tvättställ med kommod, spegel. Spotlights i tak samt handdukstork.
MASTER BEDROOM
Stort och härligt sovrum med vitlaserad askparkett och ljusa väggar. Gott om plats för möbler. Ingång till tvättstuga.
SOVRUM 2
Fint sovrum med vitlaserad askparkett på golv och lljusa väggar.
TVÄTTSTUGA
Access från master bedroom, klinker på golv och kakel i vitt på vägg. Utrustat med tvättmaskin (Siemens) och torktumlare (Siemens), tvättho och gott om förvaring.
FÖRRÅD
Förråd finns både i anslutning till lägenheten, samt intill garaget.